Chronik
"Jugendstilhotel Trifels"
Namen des Hauses
1911 - 1939 Ludwigshafener Erholungsheim Trifels
1939 - 1952 Haus Trifels, Ferienheim der Stadt Ludwigshafen am Rhein
1952 - 1999 Kurhaus Trifels
1999 - 2010 Landhaus Trifels
2011 - 2020 Kurhaus Trifels
seit 2020 Jugendstilhotel Trifels

Wappen der Besitzer von links
Stadt Ludwigshafen am Rhein (bis 1937)
Stadt Ludwigshafen am Rhein
Stadt Annweiler am Trifels
Land Rheinland-Pfalz
Familie Albrecht Hornbach

1911 - kurz vor der offiziellen Eröffnung
01.10.1907
Aufgrund einer Zuschrift des Ludwigshafener Stadteinnehmers Georg Lux beschließt der Stadtrat
Ludwigshafen in der Haupt- und Finanzausschuss-Sitzung die Wahl einer Kommission zur Besichtigung eines Geländekomplexes
für den Bau einer Ferienkolonie oder eines Urlaubsheimes für städtische Bedienstete. Oberbürgermeister Königlicher Hofrat
Friedrich Krafft unterstützt diese Idee.
11. 1907
Ca. 14 Morgen (32.800 qm) Land werden für den Geländekomplex gekauft (8 Pfennig/qm). Mittels Wüschelruten und Bohrungen beginnt
die Suche nach Wasserquellen.
17.12.1907
Oberbürgermeister Kgl. Hofrat Friedrich Krafft und der Stadtrat von Ludwigshafen beraten den Bau des Urlaubsheimes.
13.07.1908
Nach Ankauf von Grundstücken in den Gemarkungen Annweiler, Bindersbach und Waldrohrbach werden beim Kgl. bayer. Notar
Julius Selzer in Annweiler die Urkunden unterzeichnet.
14.05.1909
Der Stadtrat Ludwigshafen beschließt den Bau aus Mitteln der Städtischen Pensionskasse (Überschüsse durch Frühverstorbene).
Kostenvoranschlag: 100 000 Mark. Der jüdische Architekt und Planrevisor Markus Sternlieb ist verantwortlich für die Entwürfe und
Pläne (Diplomarbeit).
02.08.1909
Das Kgl. Bezirksamt Bergzabern genehmigt den Bau des Erholungsheimes.
25.09.1909
Die Baumaßnahme beginnt unter schwierigen Fundamentierungs- und Entwässerungsarbeiten; schlechte Witterungsbedingungen
verursachen große Transportschwierigkeiten.
06.08.1910
Nicht einmal ein Jahr nach Baubeginn findet das Richtfest statt.

Einweihung des "Ludwigshafener Erholungsheimes"
am 5. Juli 1911

28.06.1911
Das Ludwigshafener Erholungsheim "Trifels" wurde unter Rufnummer 63 an das Telefonnetz angeschlossen.
05.07.1911
Mit 500 Festgästen wird das Gebäude als „Ludwigshafener Erholungsheim Trifels“ eingeweiht. Baukosten: 152.699,31 RM. Es gibt:
einen Speisesaal für 50 Tischgäste, eine öffentliche Wirtschaft, ein Lese- und Schreibzimmer, 30 Betten und elektrisches Licht.
Auf jedem Stockwerk befindet sich ein Badezimmer. In einem gesonderten Bau ist eine moderne Holzkegelbahn untergebracht.
Das Haus steht den Mitarbeitern und anderen Gästen als Erholungsheim offen. Heimleiter: Ehepaar Karl und Fina Ludwig; Pächter:
Wilhelm Seibel, Annweiler.
29.09.1911
Der Gemeinderat der Stadt Ludwigshafen beschließt den Kauf von Grundstücken (ca. 1 800 qm) am Dorfeingang direkt neben der
Bindersbacher Chaussée zum Bau von Stallungen und einer Unterkunftshalle für Pferde, Chaisen und Automobile.
1913
Die offene Arkaden-Veranda wird durch Glasfenster geschlossen.
30.01.1913
Auf Vorschlag von Stadteinnehmer Georg Lux und des Pfälzerwald-Vereins Ludwigshafen wird Stadtbaumeister Markus Sternlieb
die Gestaltung und Fassung der Rehbergquelle übertragen. Das Wasser soll zu einem geplanten waldbotanischen Garten abgeleitet werden.
07.10.1913
Stadteinnehmer Lux stellt den Antrag Gelände zur Anlage eines waldbotanischen Gartens mit Schutzhütte zu kaufen.
20.10.1913
Der waldbotanische Garten in der Nähe des Asselsteins wird angelegt.
13.08.1914
Das Erholungsheim wird samt Inventar zur Unterbringung Leichtverwundeter als Kriegslazarett unentgeltlich zur Verfügung gestellt.
04. 1915
Die Küchenerweiterung wird an der Westseite des Hauses angebaut.
01.11.1917
Das Vereinslazarett wird aufgelöst und das Erholungsheim wieder seinem ursprünglichen Zweck übergeben.
1920
Nach verschiedenen baulichen Ergänzungen und weiterem Grunderwerb wird das Haus unter der Zuständigkeit des Personalreferenten der
Stadtverwaltung Ludwigshafen wieder geöffnet. Pächter ist immer noch Wilhelm Seibel, Heimwirt die Eheleute Karl und Fina Ludwig.
28.03.1921
Feuerbrand in dem zum Erholungsheim Trifels gehörenden Wald.
15.12.1922
Die kleine Wohnung im Stallgebäude (Dorfeingang) wird an Andreas Schneider vermietet.
04.1928
Das Verkehrsverbot innerhalb von Bindersbach für sämtliche Kraftfahrzeuge führt zum Bau eines Autoweges am Dorfeingang
(heutige Kurhausstraße).
28.05.1931
Prinz Franz von Bayern, Regierungspräsident Dr. Pfülf und Regierungsdirektor Erb beehren das Haus mit ihrem Besuch.
07.06.1934
General-Feldmarschall Mackensen stattet einen Besuch ab.

General-Feldmarschall Mackenesen 1934

Stallungen und Unterkunftshalle für Pferde, Chaisen und Automobile am Dorfeingang

der waldbotanische Garten in der Nähe des Asselsteins um 1914
1935
Die Stadt Ludwigshafen richtet zusammen mit der Stadt Annweiler die Zufahrtsstraße zum Heim neu her und legt einen Parkplatz
unterhalb des Hauses an.
02.1937
Die Erdgeschoß-Terrasse vorm Haupteingang wird verbreitert.
31.07.1937
Während der Annweiler Heimattage und Einweihung der Trifelsstraße nehmen der bayerische Ministerpräsident Ludwig Siebert, die
Festgäste und die Presse im Erholungsheim einen Imbiss ein.
1. Mai 1939
Die Bewirtschaftung des Erholungsheimes geht auf das neue Pächterehepaar über: Philipp und Mathilde Luise Rummel
16.06.1939
Das Erholungsheim wird umbenannt in „Haus Trifels - Ferienheim der Stadt Ludwigshafen am Rhein“.
23.09.1940
Auf Veranlassung des CdZ Gauleiter Bürckel wird das Haus für Sprachkurse lothringischer Lehrer 6 Monate lang zur Verfügung gestellt.
13.01.1944
Das Haus wird zum Zwecke der Unterbringung von vorsorglich umzuquartierenden älteren und gebrechlichen Personen aus dem
fliegergefährdeten Gebiet in Anspruch genommen.
22.02.1944
Die Stadt Ludwigshafen stellt das Gebäude der LVA als Ausweichkrankenhaus für Lungenkranke zur Verfügung. Die LVA übernimmt
die Station in eigener Verwaltung als Teil der Heilstätte Ramberg. Pächter Rummel zieht in ein Holzhaus mit Verkaufskiosk
an den Waldrand „Am Bannenberg“, westlich des Kurhauses.
12.1944
Der Vertrag mit Pächter Philipp Rummel läuft aus. Wegen Bombardierung des Stadtkerns von Annweiler werden das Krankenhaus
und die Entbindungsstation im Haus Trifels untergebracht.
1944 -1946
Das Notkrankenhaus steht unter Leitung von Dr. Eduard Rothenfelder. Die Trinkstube wird zum OP-Raum umgebaut. Die Kegelbahn dient als
Leichenhalle.
01.06.1948
Verlegung einer Wasserleitung von der Heimquelle „Am Bannenberg“ zum Hochreservoir oberhalb des Hauses. Das Pumpwerk
unterhalb des Erholungsheimes wird nur noch für Notfälle gebraucht.
1946 - 1951
Dr. Erich Gaab aus Annweiler übernimmt am 1. März 1946 die Führung des immer noch im Haus Trifels untergebrachten Notkrankenhauses.
1951 -1952
Das Haus wird für 170.095,60 DM wieder völlig instand gesetzt.
01.08.1952
Hugo Wolfgang mit Ehefrau Elsa übernehmen die Pacht; deren Tochter Hilde ist mit der Geschäftsführung betraut.
Die gesamte Außenanlage wird sauber gehalten von Ferdinand Spies und Hans Stein aus Bindersbach. Das Haus bekommt den
Namen „Kurhaus Trifels“.
29.01.1953
Der Bau- und Grundstücksausschuss der Stadt Ludwigshafen beschließt den Verkauf des waldbotanischen Gartens (4 830 qm) an den
Forstärar des Landes Rheinland-Pfalz.
Die sogenannte „Himmelsleiter“ und diverse andere Grundstücke werden an die Stadt Annweiler verkauft.
01.1954
Anbau einer Damentoilette an das Kegelbahngebäude.
06.1954
Im „Schweiacker“ wird eine Reihen-Garage mit 6 Boxen gebaut.
11.1956
Die 1911 gebauten Stallungen und Unterkunftshalle am Dorfeingang wird abgerissen.

die Trinkstube wurde 1944-1946 als OP-Saal benutzt
(Foto: Archiv G.Frey, Annweiler)

Garage mit 6 Boxen um 1955
1957 - 1958
Nach dem Tode des Pächters Hugo Wolfgang (gest. 3. März 1957) führen Witwe Elsa und Tochter Hilde das Kurhaus Trifels alleine weiter.
01.04.1958
Das Ehepaar Hans-Carl und Tisa-Berta Brünslow ist neuer Pächter.
01.12.1967
Johann Schnetzer aus Bindersbach wird als Anlagenwärter eingestellt.
21.06.1968
Nach dem Tod von Pächter Brünslow (gest. 30.03.1968) berät der Haupt- und Finanzausschuss Ludwigshafen über einen möglichen Verkauf
des Kurhauses.
30.06.1968
Der Vertrag mit Pächterfamilie Brünslow wird gekündigt.
02.12.1968
Der Ludwigshafener Stadtrat beschließt, das Kurhaus unter städtischer Regie - in erster Linie als Erholungsheim für die
Mitarbeiter der Stadt Ludwigshafen - weiterzuführen. Es wird für 50.000 DM gründlich renoviert.
01.03.1969
Die Stadt Ludwigshafen stellt Curt und Elfriede Mörner als Heimleiter ein. Das Haus verfügt über 2 Einzelzimmer, 16
Doppelzimmer, 2 Dreibettzimmer, Etagenbäder, Duschen und mehrere Gasträume.
01.10.1971
Das Kurhaus wird an die öffentliche Wasserversorgung der Stadt Annweiler am Trifels angeschlossen (bislang Wasserversorgung aus
eigenen Quellen).
1977
Das Kurhaus Trifels ist wieder ein „öffentliches“ Haus.
1981
Küchenmeister Uwe Popanda ist als städtischer Angestellter Wirt des Hotels mit Restaurant und Café; seine Frau Lieselotte ist
für die Verwaltung des Hauses zuständig.
23.10.1981
„Kurhaus Trifels“ wird unter Kulturdenkmalschutz gestellt.
11.1981
Das Haus soll für 1 Million DM verkauft werden. Der Preis schreckt jeglichen Käufer ab.
28.02.1983
Johann Schnetzer gibt im Alter von 81 Jahren seine Stelle als Anlagenwärter auf.
01.03.1983
Frau Müller aus Ludwigshafen übernimmt für ein Jahr die Heimleitung.
01.03.1984
Gastronom Uwe Popanda führt die 34-Betten-Pension mit Café und Restaurant als selbstständiger Pächter in Eigenregie.
Karin Benninger leitet den gastronomischen Bereich, erledigt Verwaltungsangelegenheiten und betreut die Gäste. Uwe Popanda sucht
verstärkt Kontakt zu Bevölkerung und Touristen. Das Haus ist vorwiegend belegt durch Seminare und geschlossene Gesellschaften.
In jeder Etage stehen ein Gemeinschaftsbad und zwei Toiletten zur Verfügung. Die Zimmer haben Waschbecken mit fließend Wasser.
1987
Das Kegelbahngebäude brennt teilweise ab.
10. Mai 1988
Eintragung in der amtlichen Liste der Naturdenkmäler für den Bereich der Verbandsgemeinde Annweiler am Trifels:
Park des Kurhauses Trifels, Plan Nr. 2264
15.10.1990
Die Abrissgenehmigung für das Kegelbahngebäude mit WC-Anlage wird erteilt.
28.06.1993
Die Stadt Annweiler am Trifels (Bürgermeister Peter Weber) kauft der Stadt Ludwigshafen den gesamten Besitz (245.000 qm) für
1,85 Millionen DM ab.
02.03.1995
Das Land Rheinland-Pfalz erwirbt von der Stadt Annweiler am Trifels (Bürgermeister Gerd Rillmann) das Kurhaus samt einem
großzügigen Gundstück für 1,38 Millionen DM.
31.12.1995
Der Vertrag mit Pächter Uwe Popanda ist beendet.

Das Kegelbahn-Gebäude um 1986

Es war einmal - 1996
1996 - 1999
Das Haus steht leer.
06.02.1996
Gérard Salmon aus Bindersbach wird von der Landespolizeischule als Hausmeister eingestellt.
16.11.1997
Das Gebäude wird von Firma Karl Gieger aus Albersweiler total ausgeräumt.
01.1998
Das 11.950 qm große Grundstück wird neu aufgeteilt. Die Stadt Annweiler bekommt 7.150 qm (Wald und Park) und das Land Rheinland-Pfalz
4.800 qm (Gebäude mit Park).
15.04.1998
Baubeginn der Umbauarbeiten des ehemaligen „Kurhaus Trifels“ in eine Fortbildungs- und Stressbewältigungsstätte für
Polizeibeamte. Der Kostenvoranschlag beläuft sich auf 4,9 Millionen DM. Die Planung übernimmt das Architekturbüro Bauer-Plan
aus Ludwigshafen, die Bauleitung das Staatsbauamt Landau/Pfalz.
31.05.1999
Der Werksvertrag mit Gérard Salmon als Hausmeister ist beendet.
01.07.1999
Rund 4,3 Millionen DM hat das Land in die Modernisierung investiert. Neuer Pächter ist Andreas Tarjan. Das Kurhaus steht für
alle Gäste offen. Es verfügt über 15 Doppelzimmer, 5 Einzelzimmer, 1 behindertengerechtes Zimmer, alle mit Nasszelle, weiterhin
3 Tagungsräume, und 3 Seminarräume im Dachgeschoss sowie einen Fahrstuhl.
07.07.1999
Präsentation und Eröffnungsfeier des „Landhaus Trifels“ als neues Seminarhotel mit Erlebnisgastronomie in Anwesenheit von
Landrätin Theresia Riedmaier.
06.11.1999
Offizielle Vorstellung des Hauses durch den rheinland-pfälzischen Ministerpräsidenten Kurt Beck.
12.2004
Das „Landhaus Trifels“ wird ein „Land-Gut-Hotel“ mit 3 Sternen.
31.10.2009
Die Fortbildungsstätte der Landespolizeischule wird nach Enkenbach verlegt. Pächter Andreas Tarjan kündigt seinen Vertrag. Das
Landhaus Trifels ist leer und steht zum Verkauf.

"Landhaus Trifels" im Jahre 2005

01.11.2009
Firma Immobilien-Service-Deutschland, Mannheim, stellt Gérard Salmon im Auftrag der Landespolizei-Schule als „Aufpasser“ ein.
09.2010
Das zeitgleich mit dem Ludwigshafener Erholungsheim erbaute Wasserpumpwerk ist - Dank der Initiative von Brigitte und Gérard Salmon -
nach zweijährigen Sanierungsarbeiten mit Hilfe des Bindersbacher Brauchtum e. V. und des Ortsbeirates Bindersbach fertig gestellt.
11.06.2010
Finanzstaatssekretär Rüdiger Messal teilt mit, dass ein Käufer für das „Landhaus Trifels“ gefunden worden ist.
April 2010
August 2010
Grundstücksgröße: 4800 m² - Nutzfläche: ca. 942 m²
12.08.2010
Das Haus soll als Tagungsstätte und Ort des Austausches zukünftig den Universitäten in und um die Metropolregion Rhein-Neckar zur
Verfügung gestellt werden, geben Ministerpräsident Kurt Beck und der Vorsitzende der Hornbach Holding AG, Albrecht Hornbach, bekannt.
17.12.2010
Der Kaufvertrag zwischen dem Land Rheinland-Pfalz und Herrn Albrecht Hornbach wird notariell beurkundet.
01.12.2010
Der neue Eigentümer stellt Gérard Salmon als Facility Manager ein.
17.01.2011
Beginn der Renovierungsmaßnahme durch Firma Solik, Berlin.
21.01.2011
Eröffnung der Ausstellung „100 Jahre Ludwigshafener Erholungsheim Trifels“ im Museum unterm Trifels, Annweiler am Trifels.
02.02.2011
Gemäß der Planung „Wiederherstellung der Freianlage“ von Landschaftsarchitekt Hans-Peter Schmitt aus Queichhambach beginnt
Firma Köhler-Schmitt aus Waldrohrbach mit den Arbeiten.

6. Februar 2011
Landschaftspflege und Renovierung des Kurhaus Trifels 2011
Damals - 1911 - wurde mit viel Mühe und Herzblut geplant und gemacht
Heute - 2011 - wird die Parkanlage wieder in den damaligen Zustand gebracht

29. Mai 2011
17.05.2011
Gründung des „Verein Begegnungszentrum Kurhaus Trifels e. V.“ zur Förderung von Wissenschaft und Forschung. Der Verein organisiert
Veranstaltungen und Seminare, die den hochschulübergreifenden und interdisziplinären Austausch zwischen Wissenschaftlern fördern.
Das Kurhaus Trifels dient als Begegnungsstätte und Seminar-Veranstaltungsort.
05.07.2011
Das Kurhaus Trifels feiert seinen 100. Geburtstag. Ca. 100 Gäste sind von Bettina und Albrecht Hornbach zum Jubiläum eingeladen,
darunter Ministerpräsident Kurt Beck, Landrätin Theresia Riedmaier, Dr. Manfred Efinger (Stellvertretender Vorsitzender des
Vereins Begegnungszentrum Kurhaus Trifels e. V. i. Gr.).
Eröffnung der historischen Ausstellung „100 Jahre Kurhaus Trifels“ von Brigitte und Gérard Salmon im Seminarraum des 3. OG.
Ausstellung Sabine Türk „30er Jahre Frauen“
14.07.2011
Tage der offenen Tür bis 18. Juli 2011. Das Seminarhotel steht auch Aktiv- und Erholungsurlaubern zur Verfügung.
01.10.2011
Gérard Salmon beendet seinen Vertrag als Facility Manager.
02.01.2012
Die Seminarräume im 3. OG werden umbenannt: Rehberg, Förlenberg, Adelberg.

5. August 2011

5. August 2011

3. August 2012 - 21 Uhr - Blick vom Trifels
06.10.2012
Hilde Wolfgang (*05.10.1922 - Geschäftsführerin des Kurhaus Trifels 1952-1958) feiert ihren 90. Geburtstag im
"Förlenberg-Zimmer" - 3. OG - im engsten Familien- und Freundeskreis


Bettina Hornbach gratuliert der Jubilarin
31.07.2014
Der Verein "Begegnungszentrum Kurhaus Trifels e. V." schreibt einen studentischen Ideenwettbewerb aus zum Bau
eines Gästehauses, da die vorhandene Zimmerkapazität nicht mehr ausreichend ist.
Einen Erweiterungsbau könnte sich KuBuS Generalplanungs- und Entwicklungs-GmbH, Wetzlar, www.kubus-group.com/ seitlich des bestehenden Gebäudes vorstellen

Mai 2014
10. September 2014
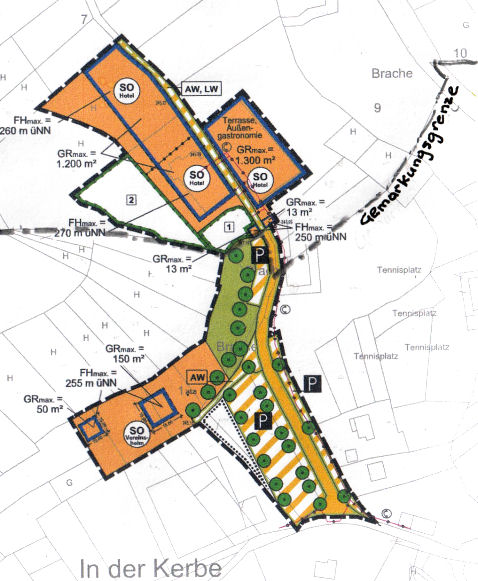
Der Stadtrat Annweiler am Trifels beschließt, dass der bereits vorhandene Parkplatz von 20 auf 71 erweitert werden kann,
wobei der Investor die Kosten trägt.
13. Oktober 2014
Der Bebauungsplan Kurhausstraße wird dem Ortsbeirat Bindersbach vorgestellt

Quelle: Stadt Annweiler am Trifels, Stt Bindersbach, Bebauungsplan "Kurhausstraße"
Februar 2020
Das renomierte Tagungs-, Seminar-, Wander- und Hochzeits-Hotel "Kurhaus Trifels" wird
umbenannt in "Jugendstilhotel Trifels"
Das dazu gehörende Restaurant wird unter dem Namen "Zum alten Kurhaus" geführt
12. April 2021
Ortsbeiratssitzung:
Informationen und Beratung über Änderung/Erweiterung Bebauungsplan Kurhausstraße sowie Empfehlungsbeschluss für
den Stadtrat. Geheime Wahl: 3 Ja-Stimmen und 5 Nein-Stimmen
10. Mai 2021
Bau- und Planungsausschuss der Stadt Annnweiler am Trifels stimmt dem Projekt einstimmig zu
11. Mai 2021
An der Zufahrt zum Haus wird ein großes, neues Leuchtschild angebracht

18. Mai 2021
Ortsbeiratssitzung:
Beratung und Empfehlungsbeschluss über den geänderten Bebauungsplan-Entwurf Kurhausstraße:
6 Ja-Stimmen und 2 Nein-Stimmen
19. Mai 2021
Stadtrat Annweiler am Trifels:
Bebauungsplanverfahren Kurhausstraße: 1. Änderung und 1. Ergänzung
Beschlussfassung: einstimmige Billigung des Planentwurfes
15. Dezember 2021
Stadtrat Annweiler am Trifels:
Bebauungsplanverfahren Kurhausstraße: Änderung/Erweiterung des Bebauungsplan-Entwurfes
Beschlussfassung: einstimmige Billigung des Planentwurfes
13. April 2022
Eröffnung der Ausstellung "111 Jahre Kurhaus Trifels", Museum unterm Trifels in Annweiler am Trifels,
Kuratoren Brigitte und Gérard Salmon

Brigitte und Gérard Salmon
Chronik zusammengestellt aus privaten Recherchen, Dokumenten sowie
Chronik erstellt im Juli 1999
Einen Bericht über das "Ludwigshafener Erholungsheim" sowie
"Anekdoten und Wissenswertes" rund um dieses Haus hat Gérard Salmon in der Dorf-Chronik "Bindersbach
1306 - 2006 Das Dorf am Fuße des Trifels" veröffentlicht.
Kurhaus Trifels
ein Buch von Bettina, Angelika und Hannah Hornbach
ISBN: 978-3-939427-62-9
erhältlich:
www.jugendstilhotel-trifels.de
Unterlagen des Stadtarchivs Ludwigshafen am Rhein, des Landesarchivs Speyer,
des Landesbibliothekszentrums Rheinland-Pfalz Speyer,
mit Unterstützung von Frau Hilde Wolfgang, Annweiler am Trifels
und Ehepaar Karin und Uwe Popanda, Eußerthal
ergänzt und auf den neuesten Stand gebracht:
April 2022
von
Gérard und Brigitte Salmon, Rehbergstraße 32 – 76855 Annweiler am Trifels/Bindersbach
über die 110jährige, bewegte Geschichte
vom ehemaligen Ludwigshafener Erholungsheim bis hin zum heutigen Jugendstilhotel Trifels
Buchhandlung Pyra, Annweiler am Trifels
2021 Knecht-Verlag, Landau
Jugendstilhotel Trifels, Annweiler-Bindersbach
Amazon